당사의 지상식, Compact 트럭스케일의 특징
(Pitless Compact truck Scale)
1, 노면에 직접 설치합니다.(기초공사가 필요없습니다.)
2, 이전설치가 편리합니다.
3, 트러블(고장)이 없습니다.(장 수명을 보장합니다.)
→ 설치 예) 1 톤 트럭 용, 5 톤 계근대
<계량판을 현장에 설치하여 위치를 확인합니다.>
<Load cell Plate를 아스콘 바닥에 설치(고정)합니다.>
<스테인리스 커버를 부착하여 설치를 마무리합니다.>
<검정>
5톤 트럭스케일이므로 분동 5톤(5개)을 올려서 정밀도를 확인합니다.
<제작 도면>
1, 계량판은 무늬판입니다.
2, 계량판 양측에 구조용 빔(제작)이 있습니다.
3, Cover와 Indicator Box의 재질은 스테인리스입니다.
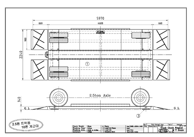
→ 설치 예) 2.5 톤 트럭 용, 10 톤 계근대
<10톤 계근대 설치사진 – 2>
<10톤 계근대 설치사진 – 3>
<10톤 계근대 설치사진 – 4>
1, 건물 지하층(폐기물 처리장 근처)에 설치하였습니다.
2, “사진 촬영 금지”지역이라 설치 중 사진이 없습니다.
(설치 완료 후에 방문하여 사진을 찍었습니다.)
<제작 도면>
1, 계근대 설치면적이 건축물 중간층이라 깊은 앵커가 불가능합니다.
2, 계근대 용량도 더 키우면 건축물이 위험해집니다.
3, 무인계량설비와 계량부스를 포함한 계량시스템입니다.
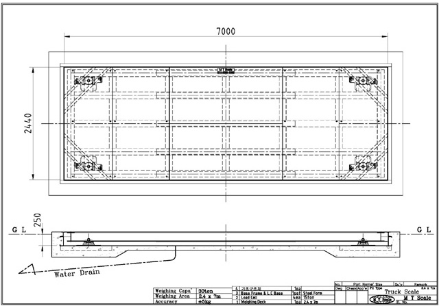
→ 설치 예) 5 톤 트럭 용, 30 톤 계근대
<Load cell Base plate를 설치합니다.>
<계량판을 지게차로 들어서 설치합니다.>
<Ramp를 정위치하고 No2 계량판을 설치합니다.>
<검정>
30톤 트럭스케일이므로 분동 15톤(15개)을 올려서 정밀도를 확인합니다.
<설치 완료>
<제작 도면>
1, 계량판은 2개입니다.
2, 2개의 계량판은 각각 용접한 일체형구조입니다.
→ 설치 예) 5톤 트럭 용, 30톤 계근대 -2
(폐기물 처리장용 지중식 설치)
<굴착면적을 Marking하고, 절단합니다.>
<굴착면적 파쇄>
<1체로 제작된 Pit Frame을 삽입하고 설치합니다.>
<레미콘 타설>
이때 배수구를 설치하고, 배수구배를 배수구 방향으로 작업해야합니다.
<계량판 설치>
계량판은 타설된 레미콘의 표면건조 상태에서 설치하면 됩니다.
<설치 완료>
계량판의 덮게판을 덮고, End line을 Marking하여 설치를 완료합니다.
<검정>
레미콘이 양생된 후에 검정합니다.(이후 사용 가능)
<설치 3년 후>
<제작 도면>
당사의 트럭스케일은 장소를 가리지 않고
고객이 요구하면 요구하는 장소에 직접 설치합니다.
지상식 또는 지중식도 고객의 요구에 따라 설치합니다.
<상담전화>
영업담당 : 010-5389-1085
