<철도침목 재활용 현장>


<금산 석회석광산 현장>

배전반 하단에 “낙뢰방지장치”를 설치하였습니다.
(광산에는 낙뢰 사고가 자주 발생합니다.)



<장유, 동경레미콘 현장>


<군산, 농협창고 현장>


<옥천, 대영레미콘 현장>


<금산, 대성레미콘 현장>


<목포, 롯데건설 현장>


<제주, 천마주유소 현장>


<창원, 태영건설 현장- 2공구>


<창원, 태영건설 현장- 1공구>


<은평 광역자원순환센타 현장(진관동 75-6)>

<5년 전에 설치한 당사의 제품 옆에 추가 설치합니다.>

설치실적 : 정읍 현장, 콘크리트 노면 직접설치(10m)

(Ramp는 철재 Frame + 콘크리트)

<Base frame 설치>

<계량판, 로드셀 설치완료 후에 Ramp frame 설치>
(계량판 설치 후에 위치를 맞추어서 Ramp frame을 설치합니다.)

<Ramp frame에 레미콘 타설>

<트럭스케일(10m) 설치 완료>

<콘크리트 Ramp, 12m 트럭스케일 설치사진>

<Marking>
아스콘노면이므로 먹줄로 마킹이 불가합니다.
석필로 마킹 해야 합니다.

<Base plate Level 조정 후 용접>

<Grouting 완료>

<계량판 하역>
용접데크(Deck)이므로 지게차로 하역합니다.

<계량판 설치>

<계량판을 설치하고 Ramp frame을 설치합니다.>

<레미콘 타설>

<트럭스케일 설치 완료>
Ramp 레미콘 양생 대기중

<Ramp 레미콘 양생 후에 검정>
지게차로 분동을 올리고,
가분동(지게차 또는 화물차)을 올리려면
Ramp 레미콘의 양생이 완료되어야 검정이 가능합니다.

<로드셀 베이스 판 / 판과 거푸집 조립체>

<그라우팅을 완료한 6개의 Base plate>

<계량판 설치>

<트럭스케일 설치 완료>

<검정>

설치 실적 : 당진 레미콘 현장 10m 지중식 철거, 되메우기 후 설치

<지중식 트럭스케일을 철거합니다.>

<지중식 트럭스케일을 철거 -2>

<되메우기>

<레미콘 타설>

<Base plate 6point 설치>

<Scale Frame 설치>

<레미콘 타설>

<레미콘 타설-2>

<검정>

<검정 후 도색>

<지상식 트럭스케일 설치 완료>

<고객의 요구에 의하여 11m Scale을 16m로 연장하였습니다.>

<16m 트럭스케일 콘크리트 양생 완료>

<검정>

<벌크 시멘트 트럭 동하중 계량>
B. C. T를 동하중(무정차) 계량하기 위하여 16m Scale이 필요합니다.

설치 실적 : 울산 이전설치

<4년전에 설치한 Scale 전경>

<이전 설치 할 장소에 Base plate 설치>

<Scale Frame 설치>
본 제품은 철판형이고 16m이므로 3판입니다.

<Scale 설치 완료>
우측의 Indicator Box는 고객측에서 기둥을 설치하여 부착하기로 하였습니다.

<Scale & Ramp Frame 설치>
2개의 계량판의 경사각이 차이(3°, 4°)가 있습니다.
(레미콘 콩장에 트럭스케일을 설치할만한 장소가 많지 않습니다.)

<사용자측에서 Scale에 꽂단장을 하셨습니다.>

<검정>

<동하중 계량>
(트럭이 Scale을 통과하면 계량이 완료됩니다.)

<덤프가 주행 중에도 측정(무게)값이 정지합니다.>

<악천후에도 AS는 멈출 수 없습니다.>

설치 실적 : 영암 레미콘 현장(C12, M10)

<Base Plate 설치>

<계량판 Frame 설치>

<레미콘 타설>

<설치 완료>

<Scale 전경 –2>
(양방향 및 적재함 카메라의 조명이 선명합니다.)

설치 실적 : 아산 레미콘 현장(C11, M9)

<Scale & Ramp Frame 설치>

<레미콘 타설>

<레미콘 양생, 전기공사 완료>

<덤프 만차계량>
덤프의 만차 무게는 42,900kg입니다.
아산현장도 만차무게가 37∼8톤에서 42톤대로 증가(10%)하였습니다.

<덤프 공차계량>
덤프의 공차무게는 14,710kg입니다.
덤프가 주행중에도 공차무게는 흔들리지 않습니다.

<덤프트레일러 공차계량>
회사(레미콘)측에서는 덤프는 공차계량을 안해도 된다고 하는데
운전자들이 Scale로 지나가는것이 편하니까 공차계량이 됩니다.

<B. C. T. 계량>
운전자가 이 회사에 처음 들어오는 것 갔습니다.
Scale 끝에서 멈칫해서 그냥 지나가면 된다고 했습니다.

설치 실적 : 용인 레미콘 현장(C10, M8)

<Scale Frame 설치>
경사면(경사도 7°)에 〫설치합니다.
당 사의 트럭스케일은 경사의 노면에 특수 설계에 의하여 설치가 가능합니다.

<레미콘 타설>
경사진 Frame에 타설하니까 레미콘이 아래로 밀리므로 힘들게 타설하였습니다.

<양생 및 전기공사 완료>

<Scale 설치 전경>

<동하중(무정차) 계량>

<덤프 만차 계량>
덤프를 동하중방식으로 계량합니다.(만차의 무게는 42,330kg입니다.)

<덤프 만차계량 – 2>
덤프의 무게는 42,390kg입니다.(덤프가 구동중에도 무게는 고정되어있습니다.
★ Scale을 처음 가동 할 때는 만차 무게가 37∼8톤이었는데
Scale을 정상가동하면서 만차 무게가 42톤대로 증가하였습니다.
약 10%의 무게가 증가하였습니다.
어느 현장이나 만차 무게의 증가는 비슷합니다.

<덤프 공차계량>
덤프의 공차 무게는 14,570kg입니다.

<덤프 공차계량 – 2>
덤프가 Scale을 빠져나가는 장면을 촬영하려다가 무게를 읽지못했는데
컴퓨터에는 정확히 기록됩니다.
(적재함과 번호판 영상도 같이 기록됩니다.)

설치 실적 : 목포 레미콘 현장(C9, M7)

<계근대 설치면적 조성공사>
Scale 설치면적이 협소하여 도로 경계블럭을 파쇄하여 노면(路面) 확장공사를 하였습니다.

<계근대 설치면적 조성공사 -2>
경계블럭 및 파쇄된 암석 제거작업

<계량판 Frame 설치>
노면을 확장하고 Scale을 설치할려고 보니까 Scale 설치위치가
절벽(암면)이어서 어렵게 설치하였습니다.

<레미콘 타설 후 전기공사>

<동하중 트럭스케일 설치완료>
TOLEDO사에서는 트럭스케일을 Weighing Bridge라고합니다.
“Weighing Bridge”라는 용어가 어울리는 Scale입니다.

설치 실적 : 영광 레미콘 현장(콘크리트 계량판 C8, M6)

<Scale Frame 설치>

<레미콘 타설>

<콘크리트 트럭스케일 설치완료>
본 제품은 콘크리트 계량판의 동하중 트럭스케일입니다.
동하중 트럭스케일은 계량판을 콘크리트로 하면 진동차단 면에서 유리합니다.
(동하중 트럭스케일을 철재로 제작하는 경우도 있습니다.)

<20톤 지게차도 통과>
20톤 지게차가 통과하여야 한다고 해서 계량판을 3310mm 로 제작하였습니다.
(보통은 3160mm)

<B. C. T. 계량>
시멘트 벌크트럭은 제1축을 제외하고 제2, 3, 4, 5축의 무게를 계량합니다.
이렇게 계량하여 계량값 보정 후에 정밀도 1%까지 보정이 가능합니다.
정밀도 1%면 “Oil 주유기”의 정밀도와 같은 정밀도입니다.

설치 실적 : 군산현장(덤프계량용)

<Base Plate 설치>

<Scale 설치>

<설치 완료>
공사 현장이라 좀 지저분합니다.

설치 실적 : 예산현장 이전설치

<선일터미널 인천 남항 최초 설치>

<인천 남항 설치 –2>
무인계량설비(Digital Controller)의 충돌사고 방지를 위하여
대형 콘크리트 블록으로 무인설비앞을 막아놓았습니다.

<인천 북항 이전설치>

<선일터미널 예산공장으로 이전>
고객측에서 계근대를 분해하여 이전 설치하고
당 사에서는 Calibration과 검정을 받고 통신선 연결을 하였습니다

설치 실적 : 김제 농산물 저온창고 현장(aT 4)
            10m, 카고트럭 계량용

<Base Plate 설치>

<Base Form & Grout>

<첫번째 계량판 설치>

<두번째 계량판 설치>

<Ramp 설치>

<Ramp 설치>

설치 실적 : 부안 농산물 저온창고 현장(aT 4)
            10m, 카고트럭 계량용

<Base Plate 설치>

<Base Grinding>

<계량판 설치>

<계량판 설치-2>

<10m 트럭스케일 설치 완료>

설치 실적 : 여주 현장
           11m, 덤프-트레일러용

<콘크리트 트럭스케일>

<Base PLate 설치>

<계량판 설치>
콘크리트 노면에 계량판을 지게차로 들어서 설치합니다.

<레미콘 타설>
계량판과 Ramp에 레미콘을 타설합니다.

<철제 Frame 세척>
레미콘 양생 전에 계량판의 철제 Frame를 세척합니다.

<검정>

설치실적 : 김제 농산물 저온창고 현장 (aT 2)

설치규격 :16m, 트레일러 용, 계량판 3판(8 Point)

<16m, Base Plate(8 Point) 설치>

<계량판 설치(지게차로 설치)>

<로드셀 설치(셀 센타 조정 및 결선)>

<검정>

<검정 후 중앙라인 도색>

<16m, 트럭스케일 설치 완료>

설치실적 : 창원 현장(건설폐기물 계량 전용)

<Base Plate 설치>
※ 위험지역이므로 소화기를 비취하고 안전하게 작업합니다.

<Base Plate Grout>

<Base Plate 설치 완료>

<계량판 설치 후 로드셀 결선>

<덤프 전용 계근대 설치 완료>
※ 무인판넬용 Booth와 가이드봉을 설치하였습니다.(방폭 관련)>

<세륜기와 계근대>
※ 건설현장용은 세륜기와 연계하여 설치하면 편리합니다.>

설치 실적 : 제주항(계량증명업소용, 1일 200대 계량)

<제주항의 계근대>

<RAMP와 계량판>
Ramp와 계량판 사이를 Sludge Cover로 메꾸었습니다.
계량횟수가 많은 경우는 필수품입니다.

<제작회사 마크>

<제주의 분동차>
(제주도는 도로사정으로 인하여 분동을 차량 2대로 나누어 운반합니다.)

<검정>

설치 실적 : 김제 현장(16m 트레일러용, 콘크리트 계량판 트럭스케일)

<16m, 설치완료>
콘크리트 계량판과 RAMP 사이의 틈을 슬러지커버로 매꾸었습니다.

<검정>

<16m, 검정완료>

동하중(무정차) 계량과 정지계량 겸용입니다.
▲ 보통 골재용 덤프트럭은 무정차 계량을 하고,
    혼화제, 유류 차량 등 정밀도를 요하는 경우는 정지계량을 합니다.
    계량 정밀도는 정지계량은 10kg, 동하중 계량은 50kg입니다

설치 실적 : Costa Rica(10m, 수출)

<좌/우 분할계량판>
Container에 적재하기 위하여 좌/우 분할하여 제작합니다.

<철제 Ramp>

<Costa Rica에서 설치완료>
Costa Rica에서 보내온 사진입니다.
(당사의 제품은 구조가 단순하여 누구나 조립이 가능합니다.)
현지 중력가속도에 맞추어 Calibration하여 출고하므로
현지에서 조립 후 즉시 사용이 가능합니다.

<제품 도면>

설치 실적 : 김제 현장(11m, 콘크리트 계량판 계근대)

<설치현장>

<계량판 설치>

<레미콘 타설>

<레미콘 타설 완료>

<설치완료>

설치 실적 : 창원 현장(11m, 콘크리트 계량판 계근대)

<계량판 설치>

<레미콘 타설>

<레미콘 타설 완료>

<레미콘 양생 후 검정합니다.>

<검정 후 도색>
트럭스케일 주변에 수로를 형성했습니다.
(우천시 또는 물청소 때 발생하는 오수의 범람을 방지하기 위한 것입니다.)

설치실적 : 음성현장(트레일러용 16m 트럭스케일, 계량판 3판)

<설치 위치 선정>

<BASE PLATE 설치>

계량판이 3판이므로 BASE PLATE는 8개 입니다.

<계량판 설치>

<계량판 설치-2>

<16m 트럭스케일 설치 완료>

계량판(3판)을 설치하여 16m 트럭스케일을 설치 완료합니다.

<검정>

설치실적 : 파주현장(콘크리트 계량판 계근대)

<BASE PLATE 설치>

BASE PLATE를 설치합니다.
(11m 이므로 계량판은 2판이고, BASE PLATE는 6판입니다.)

<BASE PLATE GROUT>

<콘크리트 계량판 설치>

<레미콘 타설>

<레미콘 타설 완료>

<레미콘 양생 완료>

콘크리트 양생을 완료하여 계끈대 설치를 완료합니다.

설치실적 : 구미현장(콘크리트 계량판 계근대)

<BASE PLATE 설치>

경사 노면에 BASE PLATE를 설치합니다.
(경사노면에 계근대를 설치하면 바닥의 슬러지가 자연배출됨으로 상시 청결한 상태를 유지합니다.)

<콘크리트 타설용 계량판 설치>
레미콘을 타설 할 수 있도록 준비된 계량판을 설치합니다.

<계량판에 레미콘 타설>

<레미콘 타설 마무리>
철제빔을 세척하여 레미콘 타설 작업을 마무리 합니다.

<콘크리트 양생 후 검정>
콘크리트 양생 후에 검정을 합니다.

<콘크리트 트럭스케일 설치 완료>

<콘크리트 트럭스케일 정상운영(컴퓨터 모니터 화면)>
진출, 진입측 화면과 중앙에 계량데이터가 정리되어 있습니다.

설치실적 : 정읍 농산물 저온창고 현장 10m (aT 1)

<계량판 현장 반입>

<Base Plate 설치작업>
Base Plate를 노면에 설치합니다.

<계량판 설치>

<Ramp와 Cover 설치>

<트럭스케일 설치 완료>
커버와 가드레일에 도색을 하여 트럭스케일 설치를 완료합니다.

설치실적 : 칠곡현장
                 콘크리트 계량판 트럭스케일

<콘크리트 트럭스케일 계량판>
설치 후 레미콘을 타설하기 위하여 철근을 배근하였습니다.

<계량판을 현장에 설치>
계량판을 설치하고 로드셀 위치를 정밀조정합니다.

<레미콘 타설>
계량판과 Ramp에 레미콘을 타설하고 양생을 합니다.

<콘크리트 계근대 완성>
레미콘 양생 후 도색을 하여 계근대를 완성합니다.

<골재차량(덤프) 계량>

설치실적 : 인천북항 / 이전설치

설치장소 : 인천 서구 원창동 393-53
               선일터미널(사업장 이전)

규격 : 11m – 60ton(덤프트레일러 계량용)

<트럭스케일 해체>
11m 트럭스케일은 계량판이 2판입니다.

<베이스판 설치>
사진의 넓은판은 무인판넬 베이스 입니다.
(바닥이 아스콘이므로 앵커가 불가능합니다.)

<이전설치 완료>
설치 후 페인트를 말씀하게 칠 하였습니다.

<검정>
이전설치시 에도 반드시 검정을 하여야 합니다..
(계량법 관련)

<실제 계량사진 입니다.>

<무인계량 모니터 화면>

설치실적 : 나주현장

설치장소 : 전남 나주시 산포면 내기리 942-7
               농산물종합물류센타

규격 : 10m – 50ton

<아스콘 스파이크 작업현장>
Base Plate에 아스콘스파이크를 압입합니다.

<1번 계량판 설치>
Base Plate에 그라우트 완료 후 계량판을 설치합니다.

<2번 계량판 설치>

<계량판과 Ramp 설치>
계량판과 Ramp를 설치하여 트럭스케일을 완성합니다.

<무인계량시스템(양방향) 설치>

<무인계량판넬>

<제작사 마크>

<계근대, 무인계량판넬, 카메라 완료>

설치실적 : 시화공단

설치장소 : 경기 시흥시 엠티브이28로 53
                대용산업

규격 : 10m – 50ton

<Base Plate 배치>

<Base Anchor & Chipping>

<계량판 설치>

<트럭스케일 설치 완료>

<제작사 마크>

<검 정>

<계량 프로그램 설치>

<계 량>

설치실적 : 울산

설치장소 : 울산시 울주군 온양읍 삼광리 718
                국성폴리텍

규격 : 16m – 50ton

<Base Plate 설치(앵커 작업)>

<Base Plate Grout>
앵커와 Plate를 용접 후 그라우트 합니다.

<계량판(3판) 설치>
16m는 계량판이 3판입니다.

<Loading Test>
차량으로 부하시험을 합니다.

<16m 트럭스케일 설치 완료>
Indicator & Printer Box를 스케일 옆 기둥에 설치하였습니다.

설치실적 : 인천항

설치장소 : 인천 중구 항동7가 104-3
                선일터미널

규격 : 11m – 60ton(덤프트레일러 계량용)

<Base Plate Grout>
앵커와 Plate를 용접 후 그라우트 합니다.

<첫번째 계량판을 설치합니다.>

<트럭스케일 설치 완료>

<제작사 마크>

<무인 계량판넬 보호용 바리케이트 설치>
바리케이트를 콘크리트 블록으로 설치하였습니다.

<계량>

설치실적 : 여주현장

설치장소 : 경기도 여주시 강천면 걸은리 산 44
                동광환경

규격 : 11m – 50ton(덤프트레일러 계량용)

<Base Plate 설치>

<1번 계량판 설치>

<2번 계량판 설치>

<제작사 마크>

<설치완료>
RAMP를 아스콘으로 시공하였습니다.

설치실적 : 가락시장

설치장소 : 서울 송파구 가락동 600
                서울시농수산식품공사(가락시장 북문)

규격 : 10m –50ton

<Base Plate 배치>

 <Base Plate Grout>

<첫번째 계량판 설치>

<두번째 계량판 설치>

<제작사 마크>

<정상 가동>

<설치완료>

<설치 7년 후>
(’23년 현재에도 Scale은 정상가동합니다.)

설치실적 : 골재 채취장

설치장소 : 충북 청주시 청원구 오창읍 성재리 693
                ㈜귀농(골재 채취장)

규격 : 10m –50ton

<1번 계량판 설치>

<2번 계량판 설치>

<지상식 트럭스케일 설치 완료>
고객의 요구에 의하여 교량에 설치 하였습니다.

<지상식 트럭스케일 설치 완료>
고객의 요구에 의하여 교량에 설치 하였습니다.

<설치 2년 후>

설치실적 : 제주항

설치장소 : 제주도 제주시 임항로 94
                SK 주유소

규격 : 10m –50ton

<콘크리트 노면에 Base Plate 설치>

<계량판(로드셀 포함) 설치>

<설치 완료>

<제작사 마크>

<설치 3년 후>

설치실적 : 고성현장

설치장소 : 경기 고성군 고성읍 남해안대로 3055
                 E1 LPG 충전소

규격 : 16m – 50ton

<아스콘 노면에 Base Plate 설치>

아스콘 노면에 아스콘 스파이크를 압입하여 용접하고
그라우트 합니다.

<계량판 설치>

<계 량>

설치실적 : 삼척현장

<덤프 전용 계근대>

<덤프 전용 계근대의 슬러지 방지판>

설치실적 : 수출용 트럭스케일(10m, 세계 최초 아스콘 노면 설치형)

<지상식 분할형 계량판>
※ 수출용은 콘테이너에 입고하기 위하여 계량판을 좌. 우 분할하여 제작합니다.

<제품을 가 조립한 상태>
※ 가 조립하여 현지 중력가속도에 맞추어 Calibration 후에 분해하여
포장하여 콘테이너에 입고합니다.

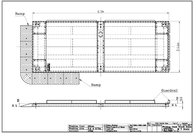
제품도면 (1) : 폐기물, 고물상용 지상식 계근대, 30ton

<지상식 30ton 계근대>

특징 1) 지상식이므로 이동(이전) 설치가 가능합니다.
       2) 지상식이므로 장기수명(내구성)이 보장됩니다.

제품도면 (2) : 자재창고, 제품공장 등 일반 화물용 계근대

<지상식 50(60)ton 계근대>

특징 1) 지상식이므로 장기수명(내구성)이 보장됩니다.
       2) 본 도면은 트레일러 계량용 길이 16m 제품입니다.

제품도면 (3) : 건설현장용(임대 전용) 계근대

<지상식 50(60)ton 계근대>

특징 1) 지상식이므로 장기수명(내구성)이 보장됩니다.
       2) 임대용으로 최적화된 제품입니다.

제품도면 (4) : 레미콘, 콘크리트 공장, 덤프전용 콘크리트 계량판 계근대

<지상식 콘크리트 계근대>

특징 1) 콘크리트 계량판은 장기수명(내구성)이 보장됩니다.
       2) 레미콘 공장, 덤프전용으로 최적화된 제품입니다.
       3) 스마트 무인계량 시스템을 개발하여 보급중입니다.

-감사합니다.-

<상담전화>
영업담당 : 010-5389-1085
중부지사(진천) : 010-3199-3919