1, 당사의 지상식 T/S은 기초공사가 필요 없습니다.
– 차량의 진입이 가능한 “아스콘”, “콘크리트”, “잡석다짐” 노면에 직접설치 합니다.
2, 임대 시 소요비용은
– T/S 운반. 설치비
– 검정비(T/S은 이동설치후에 정부기관의 검정을 필하여야합니다.)
– T/S 해체. 운반비
– 임대 보증금(1년분 임대료 로서 “해체. 운반”시에 환불합니다.)
– 임대료(매월 말에 청구합니다.)
으로서 원칙적으로 사용자 부담입니다.
3, 임대용 T/S의 규격은 3 x 10m, 3 x 12m, 이 준비되어있으며,
실제 계량면적은 3,160 x10,240, 3,160 x12,240mm 입니다.
4, 당사의 T/S은 튼튼하여 이동설치에도 고장이 없음으로 임대가 가능합니다.
영업상담 : 010-5389-1085
<콘크리트 노면 설치 시방서>
1, 본 시방서는 차량(트럭)이 주행할수있는 노면(콘크리트)에 트럭스케일을
직접 설치하는 공법에 적용한다.
2, 트럭스케일 부품구성 (규격 : 3 x10m, 3 x12m, 3 x15m, 3 x16m, 3 x18m)
2-1) 계량판(Weighing Deck) : 수량 4개(15/16/18m는 6개)
– 계량판의 강도는 Axle 3개의 하중에 충분히 견디는 구조이어야한다.
– 계량판의 폭은 1m 이상, 길이는 5m, 6m 2종류로한다.
– 계량판의 양측은 Load Cell의 상부에 설치할수있는 구조 성능이며,
X축, Y축 범퍼에 의하여 요동거리를 제한할수있는 구조 이어야한다.
2-2) Load Cell : 용량 25ton, 수량 6개(15/16/18m는 8개)
– Load Cell의 구조 성능은 자동조심형 이어야한다.
– Load Cell의 수평 요동거리는 20mm 이상 이어야한다.
2-3) Load Cell Base : 용량 25ton 이상, 수량 6개(15/16/18m는 8개)
– Base의 면적은 타이어접지면적의 3배이상 이어야하며, 노면의 강도와 사용 기간. 계량횟수를 감안하여 별도 설계에 의하여 정한다.
– Base 설치면에 요철이 있을 경우 Epoxy 등으로 충진하여 시공한다.
※ Base에 차량의 하중에 의하여 수직방향의 탄성변위가 발생하면 측정오차가 발생할수있음으로 주의하여야한다.
– Base에 다수의 Anchor를 시공하여 수평 변위가 발생하지않도록한다.
2-4) 우레탄 범퍼 : X축 4개, Y축 4개 총 8개
– 계량판의 자유 유동거리는 X, Y 각각10mm이내로 조절한다.
– X축은 저울의 양 끝 부분에 설치하고, Y축은 저울의 중앙에 설치한다.
※ Bolt 범퍼를 사용하면 Base의 변위가 불가피함. <사용불가>
2-5) Load Cell Cover : 수량 6개(15/16/18m는 8개)
– Load Cell의 상부커버로서 분해, 조립이 간편한 구조 이어야한다.
2-6) Ramp : 수량 4개
– Ramp는 Load Cell Base와 구조, 역학적으로 분리되어야한다.
Ramp에 별도의 Anchor를 시공하여 상 하차시에 변위가 없도록한다.
※ 차량이 진입할 때 Ramp가 Base에 간섭하면 측정오차가 발생함.
3, 시공 절차 및 주의사항
3-1) Load Cell Base 설치
– 차량(트럭)이 주행할수있는 노면이면 트럭스케일의 설치가 가능하지만 평탄이 잘되고, 장기 부동침하 원인이 없는 지역을 선정하여 설치한다.
– Base가 쿠션이 있으면 계량오차가 발생합니다.
※ Base Plate가 지나치게 넓으면 쿠션이 발생합니다.
– “우레탄범퍼”효과에 의하여 Base의 위치를 유지합니다.
– Grouting은 Epoxy Grouting 합니다.
※ 과거에는 Grout 전용시멘트로 Grouting을 하였으나,
근래에는 레진의 성능이 안정됨에 따라 Epoxy로 Grouting합니다.
– Anchor는 계량판 설치후에 시공한다.
3-2) Load Cell 및 계량판 설치
– Load Cell을 설치하고, Cell 위에 계량판을 올려놓고 좌. 우 계량판을 고정 Bracket을 사용하여 연결하고 불트로 체결한다.
– Load Cell Base에 Liner를 끼워서 계량판의 평탄을 조절한다.
※ 노면의 구배 등으로 설치면에 약간의 경사가 있어도 측정오차에 영향이 없음으로 노면의 구배에 맞추어 계량판의 평탄을 조절한다.
참고 : 소형저울의 경우 15°경사시험을 실시함.
3-3) 우레탄범퍼 설치 : X축, Y축 유동거리를 조절하여 설치한다.
3-4) Load Cell Cable, Summing Box, Indicator 설치
– Indicator를 지정장소에 설치하고, Summing Box를 저울의 중앙부에 설치하여 Cable을 결선한다.
– 전원을 공급하여 출력값을 확인한다.
3-5) Lamp를 설치한다.
– 계량판과 적정거리(15∼20mm)를 유지하는 위치에 Anchor 시공한다.
– Ramp는 Load Cell Base와 분리되어야한다.
※ Ramp가 Load Cell Base에 충격을가하면 측정오차가 발생한다.
4, 중량조정 및 검사 : 검정은 본 제품이 이동식임으로 제작업체에서 중량조정 및 검정을 한 후 현장에 설치하여 사용한다
5, 사용상 주의사항
5-1) 차량이 저울위에서 급제동, 급가속하여도 우레탄범퍼가 설치되어 있으므로,
완충효과는 있지만 되도록 금지한다.
5-2) 과적차량을 저울위에서 장기간 방치하면 노면의 균열, 부동침하가 우려되므로, 금지한다.
5-3) 동절기에는 Load Cell 주변이 동결되지 않도록 주의한다.
5-4) 장마철에 침수되지 않도록 배수 관리를한다.
6, 첨부 도면 설명
6-1) Concrete Road /Welding Deck Truck Scale
– Scale의 일부 절단도면 : 콘크리트 노면 설치형의 표준도면
– 상세설계는 설치 지형 답사후에 설계합니다.
6-2) Axle Road /Dump Truck : 차축과 계량판과의 관계도 (차량은 Scania Dump 기준)
※ 당사는 트럭스케일 설치시에 건축기사가 현장을 답사하여,
“Shop Drawing”하여 정밀시공합니다.
<아스콘 노면 설치 시방서>
1, 본 시방서는 차량(트럭)이 주행할수있는 노면(아스콘)에 트럭스케일을 직접 설치하는 공법에 적용한다.
2, 트럭스케일 부품구성 (규격 : 3 x10m, 3 x12m, 3 x15m, 3 x16m, 3 x18m)
2-1) 계량판(Weighing Deck) : 수량 4개(15/16/18m는 6개)
– 계량판의 강도는 Axle 3개의 하중에 충분히 견디는 구조이어야한다.
– 계량판의 폭은 1m 이상, 길이는 5m, 6m 2종류로한다.
– 계량판의 양측은 Load Cell의 상부에 설치할수있는 구조 성능이며,
X축, Y축 범퍼에 의하여 요동거리를 제한할수있는 구조 이어야한다.
2-2) Load Cell : 용량 25ton, 수량 6개(15/16/18m는 8개)
– Load Cell의 구조 성능은 자동조심형 이어야한다.
– Load Cell의 수평 요동거리는 20mm 이상 이어야한다.
2-3) Load Cell Base : 용량 25ton 이상, 수량 6개(15/16/18m는 8개)
– Base의 면적은 타이어접지면적의 6배이상 이어야하며, 노면의 강도와 사용 기간. 계량횟수를 감안하여 별도 설계에 의하여 정한다.
– Base에 차량의 하중에 의하여 수직방향의 탄성변위가 발생하면 측정오차를 유발하므로, Base의 자재와 구조를 고강성구조로 제작하여 차량 의 하중에도 불구하고 수직탄성변위가 발생하지않는 구조. 성능이어야 한다.
– Base에 다수의 Spike를 시공하여 수평 변위가 발생하지 않도록한다.
2-4) 우레탄 범퍼 : X축 4개, Y축 4개 총 8개
– 계량판의 자유 유동거리는 X, Y 각각10mm이내로 조절한다.
– X축은 저울의 양 끝 부분에 설치하고, Y축은 저울의 중앙에 설치한다.
※ Bolt 범퍼를 사용하면 Base의 변위가 불가피함. <사용불가>
2-5) Load Cell Cover : 수량 6개(15/16/18m는 8개)
– Load Cell의 상부커버로서 분해, 조립이 간편한 구조 이어야한다.
2-6) Ramp : 수량 4개
– Ramp는 Load Cell Base와 구조, 역학적으로 분리되어야한다.
Ramp에 별도의 Anchor를 시공하여 상 하차시에 변위가 없도록한다.
※ 차량이 진입할 때 Ramp가 Base에 간섭하면 측정오차가 발생함.
3, 시공 절차 및 주의사항
3-1) Load Cell Base 설치
– 차량(트럭)이 주행할수있는 노면이면 트럭스케일의 설치가 가능하지만, 평탄이 잘되고,
장기 부동침하 원인이 없는 지역을 선정하여 설치한다.
– Spike는 계량판 설치후에 시공한다.
3-2) Load Cell 및 계량판 설치
– Load Cell을 설치하고, Cell 위에 계량판을 올려놓고 좌. 우 계량판을 고정 Bracket을 사용하여 연결하고 불트로 체결한다.
– Load Cell Base에 Liner를 끼워서 계량판의 평탄을 조절한다.
※ 노면의 구배 등으로 설치면에 약간의 경사가 있어도 측정오차에 영향이 없으므로, 노면의 구배에 맞추어 계량판의 평탄을 조절한다.
참고 : 소형저울의 경우 15°경사시험을 실시함.
3-3) 우레탄범퍼 설치 : X축, Y축 유동거리를 조절하여 설치한다.
3-4) Load Cell Cable, Summing Box, Indicator 설치
– Indicator를 지정장소에 설치하고, Summing Box를 저울의 중앙부에 설치하여 Cable을 결선한다.
– 전원을 공급하여 출력값을 확인한다.
3-5) Lamp를 설치한다.
– 계량판과 적정거리(15∼20mm)를 유지하는 위치에 Anchor 시공한다.
– Ramp는 Load Cell Base와 분리되어야한다.
※ Ramp가 Load Cell Base에 충격을가하면 측정오차가 발생한다.
4, 중량조정 및 검사 : 검정은 본 제품이 이동식임으로 제작업체에서 중량조정 및 검정을 한 후 현장에 설치하여 사용한다
5, 사용상 주의사항
5-1) 차량이 저울위에서 급제동, 급가속하여도 우레탄범퍼가 설치되어 있으므로,
완충효과는 있지만 되도록 금지한다.
5-2) 과적차량을 저울위에서 장기간 방치하면 노면의 부동침하가 우려됨으로 금지한다.
특히 하절기에는 아스콘 강도가 약해짐으로 주의한다.
5-3) 동절기에는 Load Cell 주변이 동결되지 않도록 주의한다.
5-4) 장마철에 침수되지 않도록 배수 관리를한다.
6, 첨부 도면 설명
6-1) Ascon Road /Welding Deck Truck Scale
– Scale의 일부 절단도면 : 아스콘 노면 설치형의 표준도면
– 상세설계는 설치 지형 답사후에 설계합니다.
※ 당사는 트럭스케일 설치시에 건축기사가 현장을 답사하여,
“Shop Drawing”하여 정밀시공합니다.
<잡석다짐 노면 설치 시방서>
1, 본 시방서는 차량(트럭)이 주행할수있는 노면(잡석다짐)에 트럭스케일을
직접 설치하는 공법에 적용한다.
2, 트럭스케일 부품구성 ((규격 : 3 x10m, 3 x12m, 3 x15m, 3 x16m, 3 x18m)
2-1) 계량판(Weighing Deck) : 수량 4개(15/16/18m는 6개)
– 계량판의 강도는 Axle 3개의 하중에 충분히 견디는 구조이어야한다.
– 계량판의 폭은 1m 이상, 길이는 5m, 6m 2종류로한다.
– 계량판의 양측은 Load Cell의 상부에 설치할수있는 구조 성능이며, X축, Y축 범퍼에
의하여 요동거리를 제한할수있는 구조 이어야한다.
2-2) Load Cell : 용량 25ton, 수량 6개(15/16/18m는 8개)
– Load Cell의 구조 성능은 자동조심형 이어야한다.
– Load Cell의 수평 요동거리는 20mm 이상 이어야한다.
2-3) Load Cell Base : 용량 25ton 이상, 수량 3개(2-Point)(15/16/18m는 4개)
– Base의 면적은 충분히(타이어 접지면적의 10배 이상) 넓게하되 노면의 강도와 사용 기간 계량횟수를 감안하여 별도 설계에 의하여 정한다.
– Base 설치면은 진동다짐하여 설치후 부동침하가 발생하지 않도록 견고하게 시공한다.
– 각각의 Base를 Stay Bar로 체결하여 상호 변위가 발생하지 않도록시공한다.
– 시공후 복토를 충분히하여 Base를 보호한다.
2-4) 우레탄 범퍼 : X축 4개, Y축 4개 총 8개
– 계량판의 자유 유동거리는 X, Y 각각10mm이내로 조절한다.
– X축은 저울의 양 끝 부분에 설치하고, Y축은 저울의 중앙에 설치한다.
※ Bolt 범퍼를 사용하면 Base의 변위가 불가피함. <사용불가>
2-5) Load Cell Cover : 수량 6개(15/16/18m는 8개)
– Load Cell의 상부커버로서 분해, 조립이 간편한 구조 이어야한다.
2-6) Sludge Mat : 수량 4개
– Mat는 Load Cell Base와 구조, 역학적으로 분리되어야한다.
– Mat는 차량 진입시에 변위가 없는 구조이어야한다.
※ Mat가 침하하면 복토하여 사용한다.
3, 시공 절차 및 주의사항
3-1) Load Cell Base 설치
– 차량(트럭)이 주행할수있는 노면이면 트럭스케일의 설치가 가능하지만 배수가 잘되고,
장기 부동침하 원인이 없는 지역을 선정하여 설치한다.
– 복토공사는 계량판을 가설하여 Base의 정상상태를 확인한후에 계량판을 분해한 후 복토공사를 시공한다.
3-2) Load Cell 및 계량판 설치
– Load Cell을 설치하고, Cell 위에 계량판을 올려놓고 좌. 우 계량판을 고정 Bracket을 사용하여 연결하고 불트로 체결한다.
– Load Cell Base에 Liner를 끼워서 계량판의 평탄을 조절한다.
※ 장기사용 시에 부동침하등의 요인으로 Base가 침하하여도 측정정밀도에 큰 영향은 없으나 심하게 기울어진 경우 Base 양측에 설치된 Fork를 굴삭기 등의 장비로 끌어올려서 평탄을 조정하여 사용한다.
참고 : 소형저울의 경우 15°경사시험을 실시함.
3-3) 우레탄범퍼 설치 : X축, Y축 유동거리를 조절하여 설치한다.
3-4) Load Cell Cable, Summing Box, Indicator 설치
– Indicator를 지정장소에 설치하고, Summing Box를 저울의 중앙부에 설치하여 Cable을 결선한다.
– 전원을 공급하여 출력값을 확인한다.
– 잡석다짐 노면 설치형은 차량이 Base를 밟고 계량판에 진입하는 구조이므로,
측정오차가 발생 할 수 있음으로 정밀도를 낮게 설정한다.
※ 측정 가능 정밀도 : ±20kg
3-5) Sludge Mat를 설치한다.
– 계량판과 적정거리(15∼20mm)를 유지하여 잡석다짐 후 설치한다.
– Mat가 침하하면 복토하여 재 설치한다.
4, 중량조정 및 검사 : 검정은 본 제품이 이동식임으로 제작업체에서 중량조정 및 검정을 한 후 현장에 설치하여 사용한다
5, 사용상 주의사항
5-1) 차량이 저울위에서 급제동, 급가속하여도 우레탄범퍼가 설치되어 있으므로,
완충효과는 있지만 되도록 금지한다.
5-2) 과적차량을 저울위에서 장기간 방치하면 Base의 부동침하가 우려되므로 금지한다.
5-3) 동절기에는 Load Cell 주변이 동결되지 않도록 주의한다.
5-4) 장마철에 침수 또는 절개에 의하여 훼손되지 않도록 관리한다.
6, 첨부 도면 설명
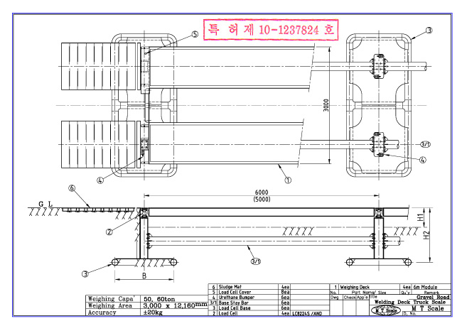
6-1) Gravel Road /Welding Deck Truck Scale
– Scale의 일부 절단도면 : 답석다짐 노면 설치형의 표준도면
– 상세설계는 설치 지형 답사후에 설계합니다.
※ 당사는 트럭스케일 설치시에 건축기사가 현장을 답사하여,
“Shop Drawing”하여 정밀시공합니다.
